
CBT試験・レンタルスペース
試験や研修に集中できる、静寂で整った環境をご用意しています。整備されたICT機器を備えたテストセンター運営や、フレキシブルに利用できるレンタルスペースでビジネスを支援します。


会議や研修、セミナーなどビジネス用途に最適な空間をご提供します。





アクセス便利な好立地
武生・鯖江インターから車ですぐ、サンドーム福井の南寄り。 鯖江駅からも近く、非常にアクセスの良い立地です。

広い駐車場
無料の大駐車場完備。100台まで収容できます。

専門業者ならではの、圧倒的な設備力
IT機器レンタル専門業者だからこそ、あらゆる ビジネスシーンに合わせた高品質な機材を スムーズにご利用いただけます。
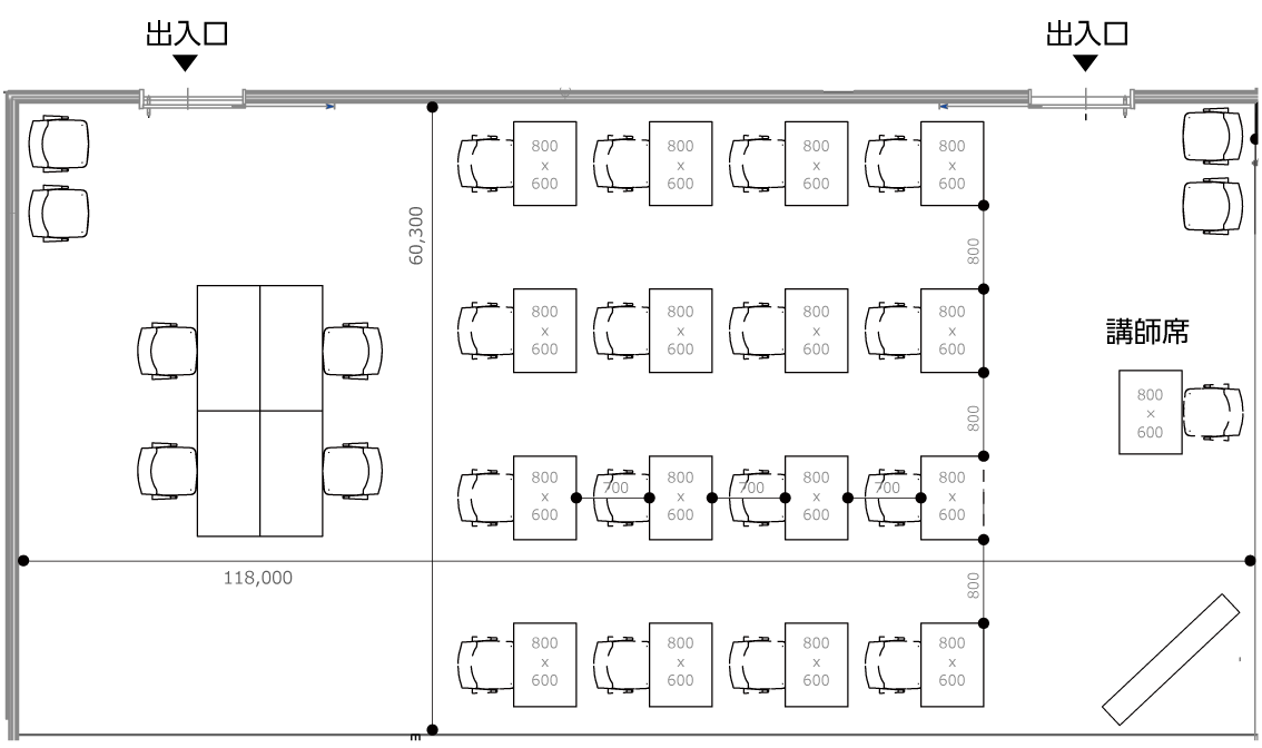
レイアウト例
セミナースタイル

※レイアウトは一例です。
| 利用時間 | 室料 | PC使用料 |
|---|---|---|
| 1日9:00~16:00 | 20,000円 | 2,000円/台 |
| 午前9:00~12:00 | 10,000円 | 2,000円/台 |
| 午後13:00~16:00 | 10,000円 | 2,000円/台 |
※PCの詳細はお問い合わせください。
※PCの詳細はお問い合わせください。